Paulus
Opdrachtgever:
Sociale Huisvestingsmaatschappij Woonsprong
Locatie:
Oostende, België
Type:
Sociale woningbouw
Fase:
Aanbesteding
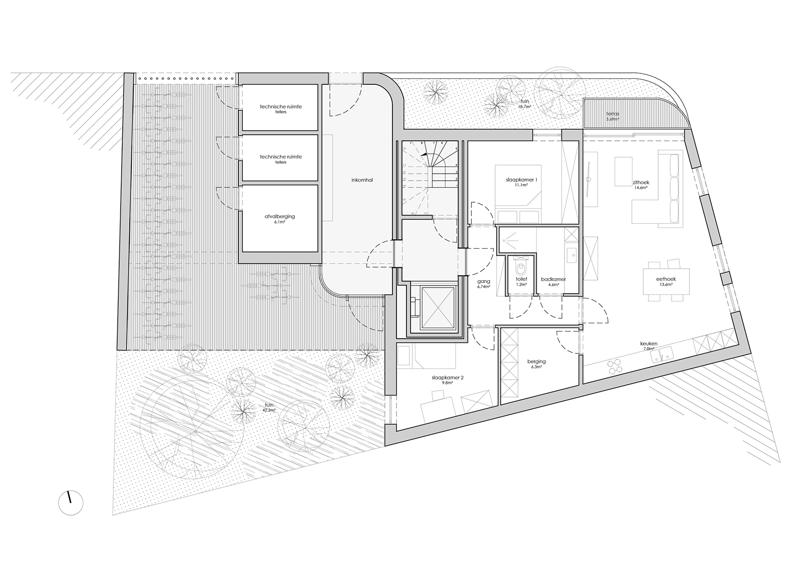
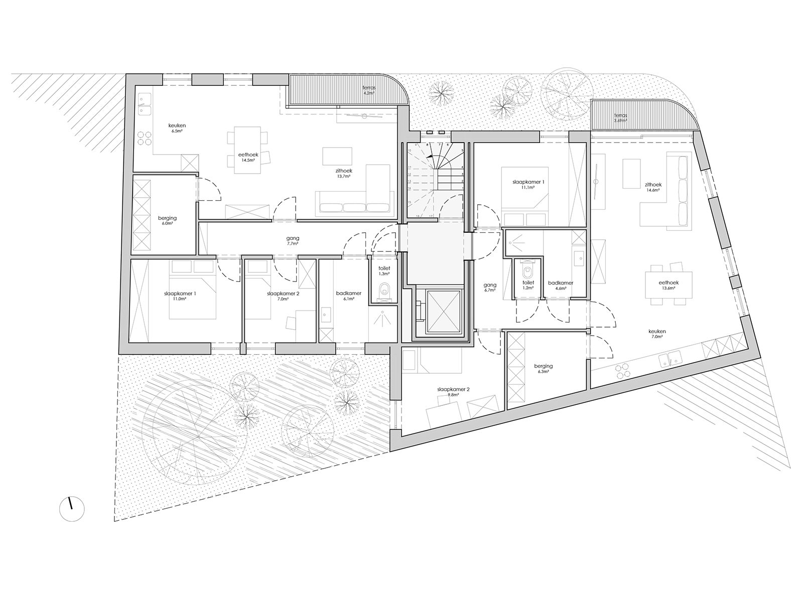
Op vraag van Woonmaatschappij Woonsprong ontwerpen we 14 appartementen verspreid over twee sites in de Oostendse binnenstad. We zetten in op compacte woonunits met hoge leefkwaliteit en een diversiteit aan semi-publieke ruimtes. Een verfijnde detaillering en fris materiaalgebruik knipogen naar de rijke architectuurgeschiedenis van Oostende en de aanpalende gebouwen.
